Отель Аганар из 10 БК
Комплектация и технические
характеристики
характеристики
Технические
характеристики
характеристики
Внешняя отделка:
оцинкованный профлист С-8, сайдинг
Внутренняя отделка:
пластиковая евро-вагонка
Потолок:
пластиковая евро-вагонка
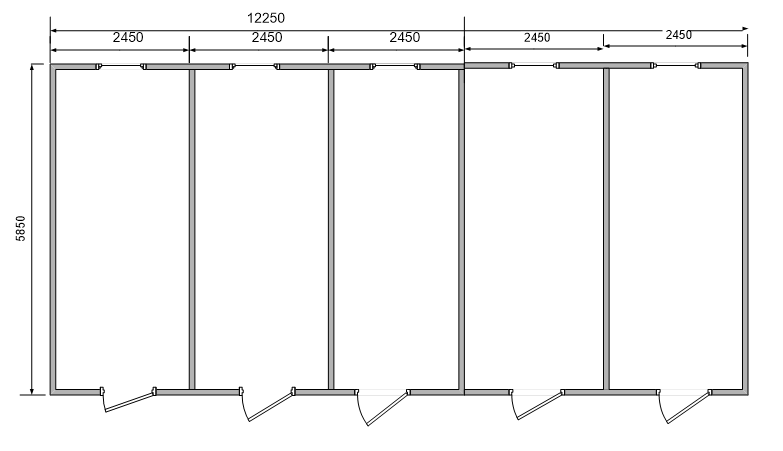
Наружные двери:
утепленная дверь ПВХ, 6 шт.
Межкомнатные двери:
одинарная дверь ПВХ, 6 шт
Черновой пол:
шпунтованная доска
Чистовой пол:
линолеум
Крыша:
оцинкованный металл
Окна:
пластиковые окна, 1,9*1,1 - 15 шт.
Сертификаты Aganar
Сертификаты
