Модульный офис Аганар
Комплектация и технические
характеристики
характеристики
Технические
характеристики
характеристики
Внешняя отделка:
оцинкованный профлист С-8, сайдинг
Внутренняя отделка:
пластиковая евро вагонка
Потолок:
Пластиковая евро вагонка
Освещение:
евро электрика, установка УЗО
Наружные двери:
Двойные утепленные двери ПВХ со стеклопакетами, 2 шт.
Межкомнатные двери:
Одинарная дверь ПВХ, 1 шт.
Окна:
Панорамные пластиковые окна, поворотно откидной механизм. Размер 2,3*2,3 м - 3 шт; размер 2,3*1,10 м - 10 шт.
Черновой пол:
Шпунтованная доска
Чистовой пол:
Линолеум
Крыша:
Оцинкованный металл
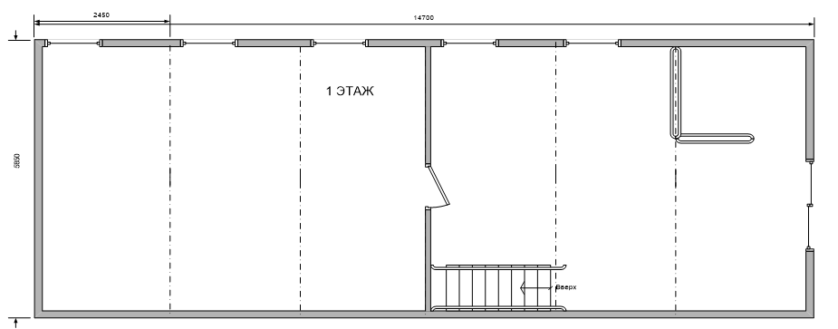
Лестница:
Металлическая, окрашенная, 14 ступеней
Сертификаты Aganar
Сертификаты
