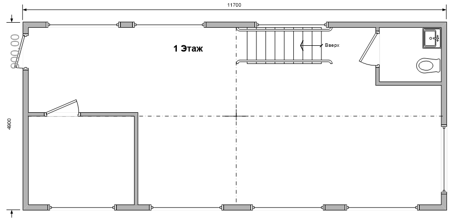
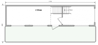
Автономный офис строительной компании
Комплектация и технические
характеристики
характеристики
Технические
характеристики
характеристики
Внешняя отделка:
оцинкованный профлист С-8, сайдинг
Внутренняя отделка:
пластиковая евро-вагонка
Потолок:
пластиковая евро-вагонка
Наружные двери:
утепленная дверь ПВХ, 2 шт.
Межкомнатные двери:
одинарная дверь ПВХ, 6 шт
Черновой пол:
шпунтованная доска
Чистовой пол:
линолеум
Крыша:
оцинкованный металл
Окна:
панорамные пластиковые окна, 2,3*2,3 - 11 шт., пластиковое окно, 2,3*1,1 - 1 шт.
Сертификаты Aganar
Сертификаты
